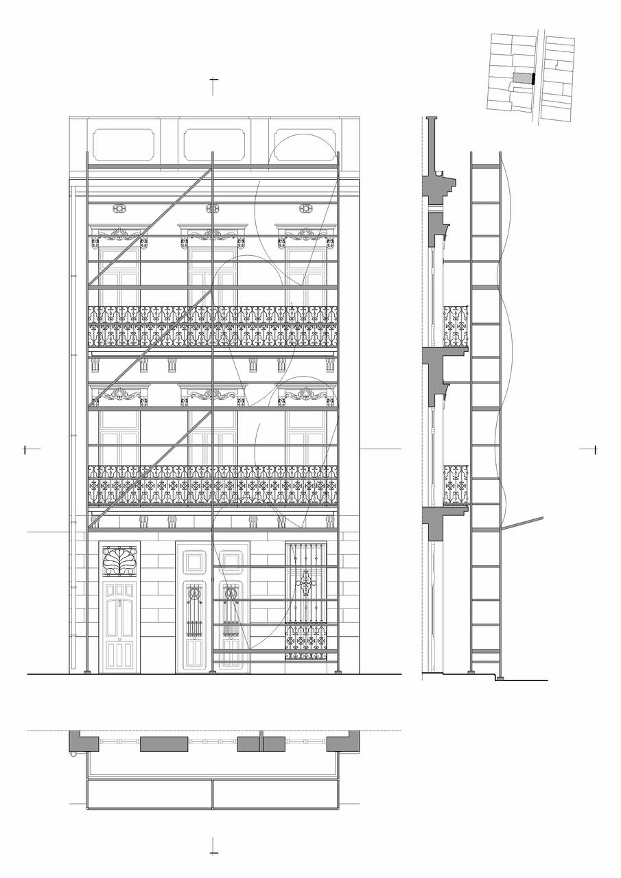
Cabanyal - Canyamelar


La experiencia acumulada en obra y la formación técnica, hace que los arquitectos de la empresa participen activamente en proyectos de rehabilitación y restauración, desde informes o peritaciones a proyectos completos. En este caso, se ha realizado un proyecto de restauración de fachada, que tras el seguimiento y concesión de la licencia pasará a la fase de obra.

Imágenes

Otros trabajos


Descubre otros proyectos en nuestra web o visita nuestras oficinas.

Anterior Página principal Siguiente

Contacto


Envíanos tus preguntas o pídenos presupuesto sin ningún compromiso a través de nuestros números de teléfono, whatsapp, correo, perfil en Linked-in, perfil en Houz o el formulario inferior.

comercial@construccionesgamero.es

Formulario

whatsapp 660.763.027